
139㎡奶油中古 | 循跡 · 感知

本案屋主是一對相當有趣的夫妻,幽默智慧是他們相處的常態,結合兩人的特點,我們將“包容”定為這個家的主旋律,在風格上融匯奶油風的溫潤、中古風的懷舊、法式的藝術與現代的簡潔,讓空間展現個性、優雅的美麗姿態。
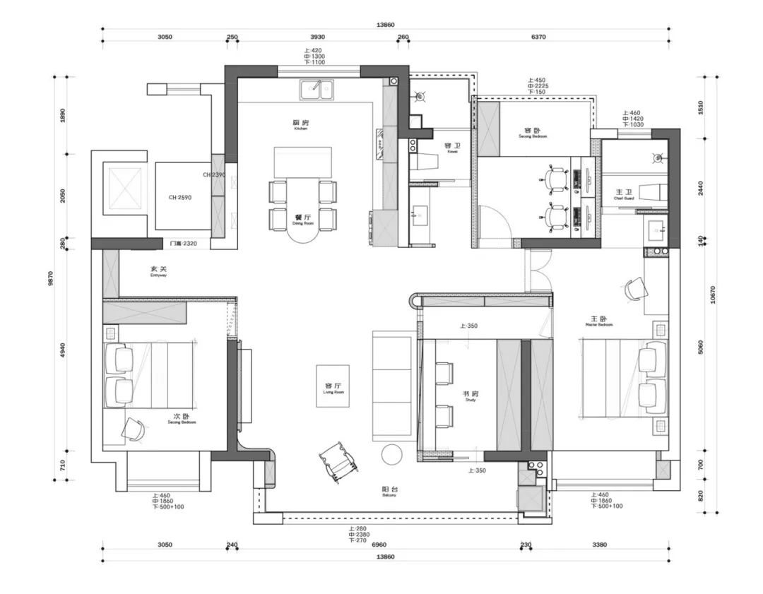
在格局上,設計師重新梳理全屋動線,將書房轉換為一個半開放式的空間,打通與主臥、陽臺間的界限,串聯成環繞動線格局,并輔以室內窗和玻璃磚兩種元素,為屋主打造出通透性和私密感兼顧的理想閱讀、辦公場所。



°客廳

陽光漫灑入室,馨香四溢。居室奶油白的基底傳遞隨性、安然而自在的氣息,中古、奶油及法式的多樣化軟配豐富空間,表達著鮮活有趣的生活態度。

室內地面通鋪優雅的魚骨拼地板,整體淺色的畫面中融入高級感黑色元素,輕重相平衡,空間也隨之有了聚焦點。

設計的筆法簡潔明朗,勾勒下清晰的空間輪廓,繼以“加法”概念,烘托極鮮明的立體感。電視墻與陽臺借由曲面形態相連,彰顯延伸感,亦收獲豐滿張力。
淺色模塊沙發展現恰好的立體度和松弛感,搭配奶油風吊燈、地毯以及中古風的茶幾、落地燈,豐富的軟裝陳設令空間的層次感愈發明晰,淡雅中不乏精致。


陽臺為客廳做延伸,進一步拓展功能。黑色倒拱形壁龕避免了白墻的單調,并有效提升空間設計感。弧面的處理無形消弭轉折棱角,居室更顯輕盈與靈動。
°餐廚空間

餐廳與廚房聯動展開,空間被高效節省,動線格外舒適從容。整體配色實現上淺下深,搭載更多沉穩性。島臺相鄰餐桌,進一步豐富餐廚區的使用機能。

餐區使用巖板餐桌搭配法式復古餐椅,頂面懸落一盞黃洞石材質飛碟燈,扁平體積不占視覺空間,輔助留白高級感,背景墻面搭襯優雅掛畫,溫柔相伴日日餐食。
°書房


半開放式書房與客廳空間以室內窗的形式銜接在一起,衍生出隔而不斷的連貫感,陪伴與私密兩種情境可以自由切換,靈活匹配居者需求。


環繞式布局令書房、客廳與主臥三塊區域之間形成了十分有趣的連接和過渡,有力彰顯空間的流動性與自由感。
通透的玻璃磚為居室增添靈動,朦朧光影感流露著詩意美學。書房內設有多列展示柜,陳列屋主在人生不同時期的收藏品,留存美好回憶。
°臥室


順著廊道,推開法式雙開門,來到融入復古美式韻味的主臥空間。功能次序伴隨動線層層打開,臥室與書房相連通,突破封閉感,讓光線和視野自在流轉。

主臥空間貫徹簡約和舒適,淺色基調營造溫馨愜意,床尾整面通頂衣柜搭配無把手設計,實現極致利落的收納美學。


擁有羅馬柱與對稱拼花元素的復古美式床,搭配實木梳妝臺,墻面配以歐式浮雕裝飾品,浪漫的情意被深刻感知,時光也好似在居室內不間斷流淌,將美的一切細致訴說。


次臥主打中古風的復古懷舊,淺灰色壁面舒緩情緒,造型經典的實木書桌搭配黃洞石壁燈,讓簡約空間具備更多人文溫度,營造一方悠閑小天地。
°小景




對于空間的表現和過渡,“感覺”是貫徹始終的關鍵。幽靜安寧的神秘氛圍借由藝術形態徐徐傳遞,自然、空間與情感緊密相連,就此融為和諧的一體。
—
·項目信息·
項目名稱:江匯城
設計風格:奶油中古
項目類型:四室兩廳
項目地點:中國·寧波
項目面積:139㎡
項目服務:設計·施工·硬裝·軟裝 全案設計
設計單位:浙江南鴻裝飾
施工單位:浙江南鴻裝飾
免費
免費申請戶型規劃
專屬設計師免費1對1全程服務
已經有3764人申請
24小時免費咨詢電話
400-8800-618
你家預算
108080元