
意式簡奢風180㎡戶型,4室大改成2室,寬闊空間豪氣盡顯!

本案為春江花月180㎡意式簡奢風格設計,業主是南鴻的一位老客戶,打算將這套房子裝修給目前單身的兒子住。
考慮到實際居住情況和未來的家庭結構規劃,設計師大膽地將原戶型的4室改為2居室,滿足了業主對寬敞空間和大氣風格的需求。
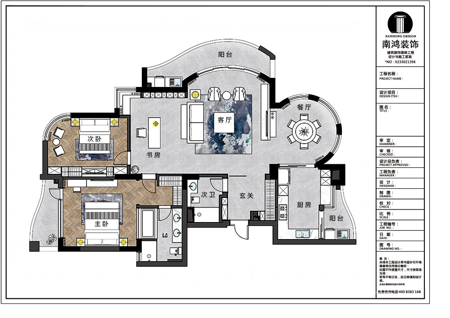
戶 型 圖

設計說明:
原戶型的4房被改造為2房,書房直接與客廳結合,空間看起來更開敞;
儲藏間并入玄關,玄關走道轉變為寬敞的門廳,同時保留了足夠的儲物空間;
廚房與保姆房合并,面積擴大,空間功能更為完善。
玄 關 Foyer

玄關合并原有的儲藏間,打造了一排功能柜,釋放出足夠的空間來營造大氣的門廳效果,并加入了金屬屏風作為隔斷,在視覺上起到緩沖效果。
客 廳 Living Room

客廳為橫廳布局,前后與餐廳和書房相通,電視背景墻做了半墻形式,當隔斷的同時又不影響空間的通透感。

客廳通鋪大理石瓷磚,黑白灰為主基調的空間中融入了墨綠色、鈦金色和寶藍色,低明度的撞色搭配展露出一種低調的奢華。


簡約的軟裝布置協調出高級的質感,多元素材質又令空間更具多變性。灰藍地毯選用得恰到好處,中和了兩側明亮的白和深沉的藍。

客廳望向書房視角,無主燈設計契合全室的簡潔調性。
書 房 Study


中性灰黑色搭建的書房空間,以干練有型的線條表現出酷雅的商務氣質。
餐 廳 Dining Room


餐廳呈圓弧形,大理石臺面餐桌搭配暖灰色皮質餐椅,結合窗外的綠意美景,用餐的體驗將更為美妙舒適。
廚 房 Kitchen

廚房,大理石瓷磚一路通鋪至此,純白櫥柜搭配黑色五金形成鮮明的視覺對比,電器柜、食品柜等多種功能柜的配置,令廚房功能更加完備。
臥 室 Bedroom


主臥鋪設木地板,背景墻選用藝術墻布裝飾,統一的大地色使空間擁有了適宜睡眠的靜謐氣氛。


主臥在進門處打造了L形衣帽間,充分利用空間。主衛與睡眠區以通透玻璃相隔,進一步延伸視覺。


次臥陳設簡單,灰白與木色結合,背景墻作留白處理,一體式柜子滿足屋子的收納需求。
衛 生 間 Toilet

衛生間干凈明亮,臺盆柜作懸空設計更顯輕盈,L形的洗手臺面方便擺放洗漱物品。
| 地址:春江花月芳甸苑
| 面積:180㎡
| 風格:意式簡奢
| 設計施工:浙江南鴻裝飾
上一篇:廚房裝修最重要的四個細節
免費
免費申請戶型規劃
專屬設計師免費1對1全程服務
已經有3766人申請
24小時免費咨詢電話
400-8800-618
你家預算
108080元