
【盛世天城】精致185㎡輕奢系美宅,寸寸皆是溫柔風情

自然和藝術,好像相互躲藏
剎那之間,他們又碰在一起
當我們把自然與藝術帶入空間
詩意在每天的生活中感受
--歌德
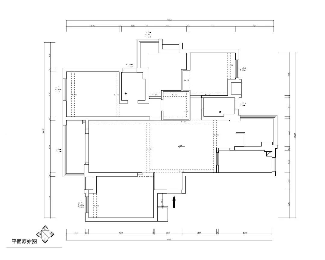
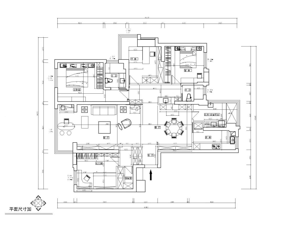
【項目·信息】 地址 | 盛世天城 城市 | 中國 寧波 戶型 | 四室兩廳 面積 | 185㎡ 風格 | 現代輕奢 設計施工 | 浙江南鴻裝飾 主要用材 | 格萊美瓷磚、邁菲樂地板、杜拉維特衛浴、洛華隆櫥柜、美萃家具、南鴻美家軟裝等 關于本案 About The Design 今天為大家帶來一套現代輕奢風格新作,男女主人均為小學老師,女兒十歲,常住人口為三名。他們希望家首先是要實用,有盡可能多的收納空間,其次有較高審美需求,在空間表現上希望溫馨舒適又不失藝術格調。 溫和與沉靜是這個家的主調,開闊的空間擁有著優越的采光與視野。穩重的大地色配合大理石、金屬、皮革、棉麻等多種材質,極富力量和層次。 空間布局張弛有度,木飾面溫潤的色澤將暖意帶入其中,以“靜”為名的藝術妙筆記錄下生活的美好,打造一個生活美學與藝術氛圍相互平衡的居住領域。 關于戶型 About The House Type ▲原始結構圖 ▲平面設計圖 01. 客廳 Living Room 客廳是一個采光良好的方正大空間,明朗、大氣,穩重的大地色烘托溫和而親切的人文氣質。 頂面黑色不銹鋼和磁吸軌道燈形成線條延伸感,增加了視覺層次。沙發背景植入小法式護墻混搭,與大衛雕塑組合,為空間注入靈動與格調。自過道口頂端特意拉出一道折線燈帶,勾勒個性的藝術氣場。 壁掛電視與收納背景合而為一,外觀利落整潔。儲物柜精準分配開閉比例,收放自如之間,穩妥了實用機能,協調了日常節奏,讓設計感恰到好處。 空間平鋪的溫厚色澤以穩重低調的問候與居者發生情感碰撞,含蓄內斂兼具東方美學韻味,一呼一吸之間將溫度與關懷深入人心。 陽臺處設計品茶區,清冽的茶香伴著溫煦日光,縈繞此間的只有言笑晏晏的自在感受... 02. 餐廳 Dining Room 餐廳與客廳以過道為界,餐桌椅均線條簡練卻不乏精致細節,一側大體量餐邊柜用于收納諸多雜物,空出的操作臺日后可擺放一些小家電,方便制作簡餐。 03. 廚房 Kitchen 廚房櫥柜選擇與公區域同種溫和色系,搭配灰色墻地磚,視覺得到統一,空間更顯明亮潔凈。 04. 過道 Corridor 過道懸一幅尺寸適中的掛畫,詩意的綠色剛好與背景墻大理石肆意灑脫的紋理相映成趣,賦予空間別樣的張力。 05. 臥室 Bedroom 主臥之內所流動的情感,溫暖而真誠。藝術感與生活感交融,營造出親切而閑適的氛圍,分分鐘便能撫平主人一天的疲憊。 床尾斗柜延伸出梳妝臺區域,綠植、畫作、小雕塑,共同圍構出一角小小的藝術天地。 客臥的氣質同樣雅致非凡,光線流連入內,盈盈散發著溫潤平靜的質感。右上角的個性掛飾就像是懸浮在半空中的月亮,讓夜晚充滿浪漫的情調。 06. 兒童房 Children's Room 以馬卡龍粉為主色調的女兒房,睡眠區、學習區、休閑區、收納區被有序安置,保障孩子能夠擁有一個完善的成長環境。房間內也有許多孩子喜愛的童趣元素,看,墻上這只頭戴小花的兔兔是不是就特別地可愛呢~ 自然親膚的面料給予孩子最大的舒適感受。 07. 書房 Study 書房,沒有任何多余的裝飾,書桌椅+大書柜的配置便已足夠日常的辦公、學習使用,轉角飄窗也被妥善利用起來,作為閑適一角。 08. 衛生間 Toilet 衛浴干濕分離,懸空式設計的原木儲物柜與臺盆柜足以滿足收納之需,視覺上也更加輕盈不添負擔,保留一份簡單純粹。

























免費
免費申請戶型規劃
專屬設計師免費1對1全程服務
已經有3777人申請
24小時免費咨詢電話
400-8800-618
你家預算
108080元